

“废旧利用、勤俭节约”是我们自古以来的传统美德;比如一些老旧家具,经过岁月的沉淀与累积后,可能表面老旧,与现代风格有点不相吻合,很多人通常就会选择丢弃 。但是只要整体框架完整,善于运用这种旧家具,可能就会有意想不到的收获 。

就像最近发现的一位上海屋主的家一样,摆满二手旧家具、以绿植为伴点缀全屋,好美好治愈 。装修理念

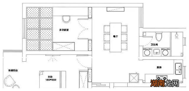
原户型图屋主@沫含是一位热爱生活的80后独居单身姐姐,自己经营着一家淘宝店;屋主说她“出生于80后、也热爱80后、对80后的一些人和事物都有着美好回忆;因此在装修新家时也把80后那些年的“记忆”灌注进了她的新家内 。

现户型图她的房子在上海的一处老式小区内,面积75㎡ , 两房一厅户型;装修除了请工人,其余都是自己亲力亲为完成的,而一些家具是她从二手市场淘来、或是长辈留下的;她说这样不仅环保,价格还便宜 。屋内实景


餐厅一个人生活,对于单身的她来讲,没有必要独立的客厅;一张8人位长方形桌子,既是餐桌也是办公桌 。四面大白墙、原木色地板、二手旧木家具、在绿植的点缀下,有种“侘寂风”的韵味,但是比“侘寂风”色系更明亮,更显温馨舒适 。

最近两年来流行的平层吊顶、搭配嵌入式筒灯;餐桌上方两盏吊灯是美式工业复古风的 , 整体搭配说不上是什么风格,给人的感觉却格外精致舒适 。

餐桌其实就是两块废旧的榆木门板拼接而成的 。

周末与节假日,大大的餐桌约上三五好友家里小聚,待客轻松无压力;有了绿植的陪衬,人也变得更加有食欲 。

玄关没有严格意义上的玄关,进门右边是厨房、左边玻璃镜内是一个储物间 , 收纳生活杂物 。镜子将柜门隐形,也让空间多了一些灵动感 。

鞋柜主卧门口,紧靠储物间的位置,布帘里面是一个嵌入进墙体的鞋柜;用布帘代替门不仅拿取方便,也让室内空间显得更舒适更温馨,同时也避免多个门出现形成空间紧凑感 。


厨房厨房地柜是泥水工现场砖砌的,用布帘代替柜门,不做吊柜让迷你厨房视觉效果更显通透 。墙上的木隔板是有点岁月痕迹感的,整体在白色石英石台面与白色无缝瓷砖的衬托下 , 显得干净整洁又带着一股田园风的温馨 。


餐桌后面是次卧,不装门用布帘代替;透过门框与餐厅相望彼此 , 起到视觉延伸性、让彼此空间显宽敞明亮,也起到相互“借景衬托”的作用 。

次卧床次卧的床是钢木结构的 , 如图东北炕一样的形态 。


次卧的衣柜是11年前屋主在旧货市场花80块钱淘来的,在老房子内用了11年 , 随新房入住又搬了进来 。衣柜上雕琢匠心独具,搭配几株绿植与墨绿色窗帘点缀,在大白墙的衬托下让充满着时代感又不显呆板,带有浓烈的大自然韵味 。


门洞上安装有投影布,次卧弥补了没有客厅的遗憾;窝在榻榻米上看电影,可坐可躺,比窝沙发内还舒适 。(孩子是朋友的)


另外,床尾内嵌入了一台迷你电视机;这是按父母生活习惯、为他们偶尔来小住准备的 。日常用壁画挡住,美观又不占空间 。


卫生间金色镜子与灯饰,让宁静的黑白色气氛瞬间活跃了起来,更有趣味性 。

主卧80年代流行的雕花屏风刷白、作为床头靠背 , 一只母亲时代陪嫁的樟木箱作为床头柜,80年代流行的白色裸灯泡作为床头照明光源,床尾是妈妈那些年流行的脚踏缝纫机 。这样的搭配本应淡而无味 , 不过利用床品加以绿植点缀后,给人一种无可辩驳的清爽舒适之感 。

缝纫机并不是完全为了念旧的装饰摆件,也是屋主卧室的书桌 。

衣柜下方的柜子是二手市场淘来的,与樟木箱色调相呼应;布帘代替衣柜门,省钱又方便,与全屋搭配相吻合 。

床尾,原本是预留了电视机强弱电的,入住后屋主发现用不上,于是一幅壁画上墙遮挡 , 也让白色墙面不会太单调 。

阳台绿色窗帘自然垂落在地,与原木色地板搭配,在白色墙面的衬托下 , 给人一种神圣、脱俗、清雅、又生机盎然的之感 。


【上海发现一位屋主的家,摆满二手旧家具,以绿植为伴,好美好治愈】她家除了旧家具,狗也是捡来的流浪土狗;相对比现在各种品种的洋犬,这样的土狗承载着80后太多的记忆 。她家没有奢侈的装饰,却满是80后儿时的回忆;白墙、原木、旧家具,通过亮色系灯饰、冰箱、床品加以点缀,再以绿植为伴的衬托下 , 全屋好美好治愈!回到家之后外界的浮华都随云烟过,只享受生活当下的烟火气,这样的家你喜欢吗?
猜你喜欢
- 英国历史上第一位女王玛丽一世个人生平简介
- 4s店提车发现有轻微划痕怎么解决
- 三元催化清洗有必要吗
- 上海创业落户最新政策,创业沙龙上海
- 孩子网恋该如何处理 家长发现孩子网恋的正确处理方式
- 上海牌照有哪些字母
- 发现孩子网恋,家长怎么做才能做到更好 如何引导孩子网恋
- 发现孩子网恋早恋如何引导 孩子早恋网恋家长怎样引导
- 稀土发现历史及其种类介绍 稀土的主要用途是什么
- 上海10座古镇哪个最好玩 上海古镇十大必去景点大全排名
