

一人一屋一猫,也是一种极其惬意且舒服的生活 。
现在很多年轻人都处于独居的状态,住在一个不大的小房子里,却格外的轻松自由,没有别人的约束,更加的舒服和惬意 。

本期家装案例给大家分享的是一个29岁小姐姐的家,小姐姐在大学毕业之后,选择留在了大城市工作 。
为了能够给自己更加安稳和稳定的生活,小姐姐通过几年的努力,攒下了一笔钱,买了一个“老破小” , 将它装修成自己喜欢的样子 。
小姐姐从小便十分喜欢动物,也超级有爱心,现在养了一只小猫咪 , 一方面是有一个玩伴和生活上的寄托,另一方面也是她的兴趣和爱好所在 。
装修前

小姐姐买下的房子之前是一对老年人在居住 , 而且是一套房龄很多年的老房子 。
老房子整体面积不大 , 室内的装修以及家具老旧,整个布设也很简陋,并且室内的采光也不好,而且还没有多少可以用来收纳的空间 。
改造后

改造之后就完全不一样了 , 室内清爽又温馨,浅黄、浅绿、原木色系的搭配,给人一种温馨又治愈的感觉 。
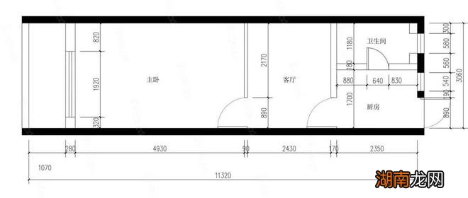
原始户型图

整个家的套内面积仅有33㎡,户型的主体结构呈狭长形 。

整个家虽然是狭长型,但重装后的空间布局更加合理 。
入户左侧是玄关以及开放式厨房,右侧是卫生间,中间是客餐厅,靠阳台一侧是一个带衣帽间的卧室,阳台被改造成了一个休闲区 。

这个家很巧妙的一点在于从玄关进去,有一个直通行的走廊,将整个家串联起来 。
左侧做的厨房、收纳,而右边则是主要的空间,还给小猫咪设计了一个猫房,真的是很创意和周到的设计 。
玄关

入户玄关是一个很精致的小角落 , 配色非常有个性,深蓝色的隔断和整个家形成了明暗的色彩对比 。
墙上安装了挂钩,入户门对面则用洞洞板装饰,方便衣物、包包等的挂放 。

入户门右侧则设计了一组玄关柜,原木色 , 白色,草绿色的搭配,清爽又舒服 。
上面的开放式柜子方便一些好看的瓶子、摆件、化妆品的放置,中间则可以放置包包、钥匙等 , 下面是鞋柜,可以收纳鞋子 。
小小的玄关也是实用感满满呀!
猫房

卫生间外 , 小姐姐专门在进门的地方给小猫咪设计了一个玩耍空间和休息空间 。

而且架子比较多,小猫咪玩耍起来还是很愉快的 。
卫生间

从玄关柜和猫爬架中间的玻璃门进去,就是卫生间了 。
里面空间虽然不大,但是也是很干净且丰富多彩的设计 。
虽然没有做到真正的干湿分离,但是淋浴区和浴室柜之间还是设计了玻璃隔断,防止水溅到外面 。
浴室柜 镜柜的组合,收纳能力极强,方便又实用 。

马桶区则设计在另一个角落 , 虽然紧凑,但完全不影响使用 。
并且卫生间内还有一扇小窗户,明卫在小户型中是比较少见的 。
厨房

厨房面积并不大,卫生间和猫房的对面,简约的一字型开放式厨房设计,满足小姐姐一个人的用餐需求是完全没有问题的 。
虽然整个空间并不大,但是每一处都是很好看、很实用的设计 。

厨房的橱柜也是白色和淡蓝色的拼接,超级治愈和文艺啊~
厨台被小姐姐收拾得干净整洁又利索,墙壁上还挂着架子,方便不同的厨房用品的收纳 , 真的是一个超级精致的小姐姐了 。
客厅

经过厨房往里走,就来到了客餐厅的空间了 。
PS:不喜欢开放式厨房的朋友,可以在厨房与客餐厅之间安装上一扇门,这样就能完全地隔绝油烟的污染了 。

客厅区域简单又丰富,浅蓝色的沙发呼应着书架背景墙的颜色,很柔软,再用一些黄色抱枕做点缀,这样色彩就能更加有层次感 。
沙发背景墙上的装饰画也是这两种颜色的,有一种协调的美感 。

另一边靠墙处则是一整面墙的书架,将小姐姐很喜欢阅读,所以专门设计了一面这样的书架,将她平时喜欢看的藏书都放置进去 。
书架和沙发之间还有一盏落地灯,晚上独自一个人窝在沙发上,看着自己喜欢的书籍,也是一种享受 。

茶几不大也是创意又小巧,这样既不占用空间,也让整个家变得更加精致 。

客厅电视背景墙设计了整面墙的电视柜,柜体和厨房的橱柜是一体化的设计,既能增加收纳空间,又美观实用 。

中间是电视机,旁边全部是柜子,拼接样式简单又利索 。

靠近卧室的地方还设计了一组冰箱柜,将冰箱嵌入式地放置在这里,很巧妙地利用了空间 。
同时粉色、白色、浅蓝色三种颜色运用,也给人一种满满的浪漫感,是很多小女生喜欢的颜色 。
卧室内的衣柜和冰箱柜是同色系的 , 让室内空间层次过渡更加自然 。

客厅和卧室的隔断下面的柜子里 , 还放着一把吉他,小姐姐真的是超级文艺的女生呀!
卧室

卧室清爽又利索,浪漫又温馨,每一处的角落都是细节满满 。
双人床上的床上用品运用蓝白色调,很干净和简约 。

床头背景墙采用粉色和白色的拼接撞色设计,这种几何形状的拼接,简约大气又美观 。

床另一边还有小姐姐的化妆台,也是粉粉嫩嫩的 , 少女感十足 。

卧室的角落里 , 是一个开放式的衣帽间 。
下面是连通的柜子,增加收纳空间,上面还有挂放衣服的架子,简单实用 。
阳台

阳台是一个很好的休闲区,小姐姐也会在这里简单地处理一下工作或者在这里上上网、看看书 。
阳台的右侧还设计了洗衣区,洗衣机柜里嵌入了一台洗烘一体机,洗衣烘干一步到位 。
洗衣机上方的墙面上还安装了一个置物架,摆上几盆绿植,非常的漂亮 。

阳台另一边还做了一组整墙的收纳柜,让家里的收纳能力更强 。
整个阳台也是超级舒服的,而且配色清新又文艺,浪漫又温馨 。
【结语】
独居并不可怕,反而现在很多人愈发享受着这种独居的状态 。
【29岁小姐姐买下33㎡“老破小”独居,重装后,配色让人赏心悦目!】最重要的是自己心态的调整,心情放松和愉悦,然后住在一个自己打造的舒服又喜爱的小屋子里面,这也是人生当中的很愉悦的事情吧~
猜你喜欢
- 国外离婚怎么分财产 嫁外国小伙离婚财产如何分割
- 小米电视u盘怎么打开 小米电视u盘怎样打开
- 黑玛丽鱼生小鱼后处理方法 黑玛丽鱼生小鱼后怎么做呢
- 隋朝军队真的有电视,小说演的不堪一击吗 事实证明千万别去相信这些事
- 离婚了小孩能不能分财产 离婚小孩是否能分得财产
- 小车年审多久审一次,年审逾期了怎么处理
- 米家怎么添加小米电视,米家怎么添加小米电视2
- 三年级小孩就是不写作业怎么办
- 小孩多动注意力不集中怎么 小孩多动注意力不集中怎么治
- 小孩不专心注意力不集中怎么培养
