

在大多数人的观念里 , “专业的人做专业的事”总是较为正确的观念 。特别是在家装方面,似乎请专业的设计师,总是会让人感到更踏实和放心 。然而,这些年在小喜看过无数的家装案例后,对这一根深蒂固的想法也有了瓦解 。
特别是看到很多所谓的设计师,直接给客户照搬风格,所产生出千篇一律的家 。看似高级、大气,实则毫无灵气美感 。犹如流水线上的产品一样,标准、但毫无个人的思想和表达 。
而家却恰恰需要这种不同的主张和表现,因为它切实影响着居住者的生活状态 。本篇小喜要分享的是一个超级厉害的宝妈,她自学制图打造新家,大到整屋布局规划、色彩风格、灯光线路,小到墙砖颜色、储物收纳、萌趣摆件,都花费大量的精力和心思 。
最终效果赶超专业的设计师 , 实用、美好又给人有爱和治愈感,让我感慨这才是家的状态!装修没思路的宝子们,快来学习吧!
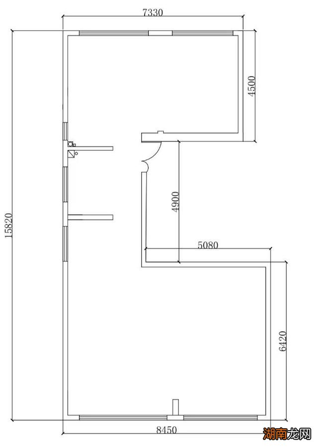
01户型图
原户型建筑面积130平,套内100平,户型不是很方正,玄关也很小 。但是胜在内部采光好,外加只有两段墙体,布局可全由自己设计,非常灵活 。

改造前户型图
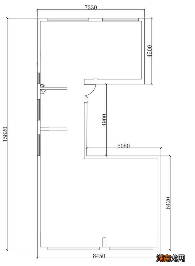
女主人没有请设计师 , 全程自己参与,先是自学CAD制作户型图 , 又用软件做效果图 。用她的话说,因为每天都有新的想法和思路 , 加上考虑入住后的种种情况,所以反复地改图纸,尽可能地让家落地后更实用和全面 。

改造后户型图
改造后,屋主将原内部墙体拆除,做成客餐厨一体式的设计,空间更显大;朝南作为主卧,采光好,室内舒适温馨;北面空间则改造成次卧和儿童房 , 满足小朋友的童趣,父母小住也很方便 。
实际上,除了户型图外 , 女主人还做了灯具布线图、灯具开孔图,连家具尺寸也都十分精确,每一个细节都不放过,将家打造得完美又治愈 。看完后,真的不得不佩服!
02玄关
开门就是厨房 , 几乎没有玄关 。屋主利用入户左手边墙面放置换鞋凳和鞋柜,满足日常使用需求 。

樱桃木的藤编鞋柜,实木纹路圆润有质感,藤编透气,收纳鞋子也不会有异味 。

入户墙面上的可视对讲机和电表箱 , 分别用黑胡桃木的时钟和挂钩面板遮挡 。不仅美观,而且一进门就可以看到时间,同时还可以顺手挂上钥匙和口罩等,超级方便 。

【合肥宝妈花65万自装130㎡新家,可开合厨房 整屋原木,实用又治愈】因为紧挨厨房 , 玄关位置除鞋柜外,还放置了一个超级大的餐边柜,功能齐全储物强,自带满满的生活气息 。

总之一进门的玄关,就给家里铺垫了十足的原木氛围,自然的木质感,在灯光下耐看又美好~
03可开合厨房
厨房是整屋设计的一大亮点,虽然是客餐一体 , 但是为了满足通燃气要求,以及做饭时减少油烟,屋主还是做了L型的三联动移门 。

平时不做饭或者只是煮点简单的食物时,移门都是推到一边,保证空间的连贯统一 。

非常值得一提的是 , 屋主使用白框搭配超白玻璃,让移门即便全部关上,也十分有清新和通透感 。

移门轨道在顶部,地面没有卫生死角 。同时厨房使用木纹砖 , 防水防潮 , 为了保证与实木地板的收口美观,还专门选择极窄的收口条,让整体效果流畅极简 。

厨房内部同样是L型的布局,原木台面自带烟火气息 , 搭配纯白简洁的橱柜 , 非常精致 。

厨房窗户安装百叶帘,白天打开,光线超好看,晚上关闭又可以很好的遮光 。搭配花苞吊灯,氛围感轻松营造 。

屋主选择燕麦色的石英石大单槽 , 貌美实用,洗锅洗碗都很轻松 。左边还放置了沥水架,清洗水果菜品顺手可放 。

厨房面积并没有很大,加之无法做吊柜,所以水槽下的空间也全部被屋主利用起来 。放置双层可抽拉的置物架,充分利用垂直空间,来收纳各种清洁用品和厨房工具 。

柜门上也通过挂钩壁挂木勺、杯刷等,开门即?。憬菔×?。

除此外 , 水槽柜旁的洗碗机位 , 与台面之间有十几公分的空隙 , 也被屋主设计成大深抽 。内部做分隔,家里各种餐具一收俱全,连洗碗块都完美收入,真的太强了 。

常用刀具也通过置物架全部上墙,以减少台面上太多杂物带来的凌乱感 。

同时,调料和各种调味品,则分别使用不同的分装瓶收纳,基本黑白灰的颜色,视觉上整齐有序 。

开放式厨房,整洁度就决定了美观度 。屋主在厨房收纳上,基本采用不常用物品能藏就藏,常用物品能挂就挂的原则,加之巧妙利垂直空间,轻松保持厨房整体的清爽 。
04餐厅
餐厨距离非常近,紧挨的两面大窗户,采光充分,这也让原本就很温馨的原木餐厅,更加散发着温暖的气息 。

餐厅是由1.8m的餐桌 0.9m的岛台组成,日常只是一家三口使用,空间绰绰有余 。

餐厅灯则使用黑胡桃木的黄铜色吊灯,色温4000K的暖白灯光,让整个餐厅都显得十分亮堂 。

周末,一家人都投入厨房,准备一个丰盛的晚餐,欢声笑语,是平淡生活里最幸福的时刻 。

餐桌两侧分别是巧克力长凳和餐椅,黑胡桃木的面搭配樱桃木的腿,不同木材所呈现的原始色彩,越看越有味道~

多功能的餐边柜是餐厅的重要角色 , 它把小家电收纳 储物抽屉 常用家电区 小餐具玻璃柜 开放式杯柜/酒柜结合于一身 。储物量大功能强 , 加上颜值也很高 , 用于原木风的家真的很有气场 。

柜门全部使用长虹玻璃推拉门 , 更加通透不显笨重,中间区域使用黑色亚克力洞洞板,
轻松满足小物品收纳 。
屋主还专门入手了一个复古杯架,与餐边柜完美搭配,平时喝水喝咖啡都太方便了 。

除了各种实木家具外,我更喜欢屋主餐厅处的可爱摆件,不管是画还是各种小物品,都充满了童真可爱,点缀空间的同时 , 也给人会心一笑的治愈感 。
05客厅
原木风的客厅 , 简洁明了又十分大气,梦幻帘搭配原木风,也是妥妥的氛围神器 。

120英寸的幕布,相比电视来说,观影效果来得更爽 , 视觉上也更显简洁 。

客厅的家具 , 依旧是原木主?。裾さ缡庸翊钆湫∈楣? ,满足收纳的同时,也方便客厅看书的习惯 。

小茶几的选择非常重要,因为屋主家的宝宝比较小,笨重又大的茶几横在客厅中间,很影响宝宝活动 。
于是作为妈妈的她 , 精心选择这款可以调节高度的小书桌,来客时可以充当茶几使用 。

更多的时候,是把它放在窗户旁边,搭配上宝宝小椅子,给他涂涂画画玩玩具 。等孩子逐渐长大 , 桌子高度也可以根据孩子身高调节,陪伴孩子成长,更有见证时光的意义 。

单人沙发椅,放在宝宝书桌一旁 , 方便父母坐在此处,给孩子读绘本或一起做手工,随处可见一位妈妈的用心 。
其实,孩子成长中最宝贵的亲子时光,或许就在这一盏盏灯下,一张张座椅里,和一个个小书桌上 。

沙发墙角处,屋主还设计了一个小巧的储物柜 。看起来又薄又?。?打开柜门才发现 , 容量可真不少 。

日常纸巾、宝宝湿巾、零食泡面、各种杂物等,都通过收纳盒摆放得整整齐齐,但也只占了储物柜的一半空间 。
随着孩子成长,未来还可以收纳宝宝玩具、书籍等,超级实用,设计在角落存在感又很低 。

平时铺上地毯,放上小茶几,又可直接在客厅办公看书,也是轻松自在的一天 。

因为厨房空间有限,屋主把家里的冰箱、洗衣机、烘干机集中安排在客厅一角 。

形成一个独立的家电区 , 又靠近卫生间,动线短又便捷 。颜色上全部选择白色,即便没有做嵌入柜式的设计,依旧能给人极度的视觉舒适感 。
06卫生间
卫生间只有不到3平,却是屋主非常用心的一个位置 。先是使用长虹玻璃门,让小卫生间也自带通透清新 。

接着为了减少小空间的压抑和逼仄感,屋主坚决选择了奶油白横纹砖,虽然清洁上有点麻烦,可是真的非常有质感又好看 。搭配上百叶帘 , 盐系清爽感呼之欲出 。

由于空间实在太?。绻鲎晔茉》浚?洗澡时空间过于拥挤 。因此屋主直接在淋浴与如厕区之间使用玻璃隔断做干湿分离,和厨房的折叠门效果有异曲同工之妙 。

花洒也选择白色,保持整体的统一,自带的小置物台还可以放置沐浴露 。一侧柱子上还壁挂了小巧的折叠衣架,一些贴身衣物随手清洗,就可以挂在这里通风晾干 。

洗漱区与淋浴间距离太近,屋主在这里没有安装镜柜,也避免后期受潮 。直接安装一个椭圆形的的智能镜 , 能及时除雾,洗完澡后也能轻松护肤 。

小物品则充分利用起墙面空间,安装多个黑胡桃木的置物架,搭配黄铜的设计,简洁好看 。

浴室柜空间自然也不能放过,除了柜内收纳,洗澡时穿的拖鞋,利用柜子侧面壁挂起来,既能轻松沥水,保持干燥,又方便洗澡前顺手拿取 。

一些日常使用的各种盆 , 则又通过置物架收纳在浴室柜底部 , 隐身又不占地方 。

门后空间也十分重要,轻松壁挂泡脚桶、拖把、晾衣架,靠下面一点还安装一个小毛巾挂杆,来挂擦脚巾 。洗完澡需要更换干拖鞋时,在这里就可以顺手一擦~
总之,屋主真是把收纳与日常生活动线结合得淋漓尽致 。空间也被充分运用起来,简洁的挂钩、有质感的置物架和黑白搭配的色彩 , 又让人完全不感到繁杂凌乱,真的很厉害啦!
07主卧
主卧背景墙是灰绿色,搭配原木床和书桌,复古与原木也能有巧妙的碰撞 。

床头两侧没有放置床头柜,而是分别使用书桌和梳妆台代替,这样办公和梳妆的需求就全部得到满足 。

床尾放置一个原木拼接的衣柜,格栅推拉门,复古感十足,又有十分质朴自然的气息 。

衣柜内部也进行了分区收纳,上层收纳男士上衣 , 下层收纳裤子 。另一侧则是女士挂衣区,袜子、内衣等也全部通过抽屉收纳盒搞定,非常整洁有序 。

对于原木风的家来说,成品原木衣柜带来的效果远超过定制柜,它不仅会让整体风格保持更一致,而且还给人一种儿时的记忆 。对我来说,每次看到原木的成品衣柜,就会想到奶奶或者外婆家的场景 。
08次卧
次卧既作为父母房,也偶尔可做客房,布局上更为简洁 。藤编的原木床,搭配原木衣架 。方便日常收纳常穿衣物 。

墙面壁挂着一副可爱的家居场景图,色彩艳丽 , 画面又生动活泼,处处体现着屋主那份爱家的生活态度 。

另一侧床头墙面安装了折叠壁灯,光线温暖明亮,让休息的夜晚也变得十分宁静 。

次卧空间较小,使用香格里拉帘,视觉上显大又清爽,也真的很能营造光线的美感 。

屋主在次卧床尾墙面设计了一门到顶的衣柜,储物量非常大,用来收纳一家人的换季衣物都没问题 。

柜门采用铣槽免拉手设计,简洁大方,利落干脆,将整个衣柜的存在感降低了很多 。
09儿童房
儿童房与其他卧室完全不同,屋主作为妈妈,考虑到宝宝的成长需求 , 尽可能地满足宝宝当下的状态 。因此整体布置童趣梦幻又可爱生机 。

原木小床搭配机器人的床头小柜,仿佛随时可以动起来 , 真是大大了满足了孩子的童心 。

软萌Q弹的蛋黄色小椅子,也成为儿童房的亮眼角色,不管放在哪 , 都让人移不开眼 。

小熊图案的白色床品,更是增加了儿童房的温馨感,墙面一幅卡通的挂画,给孩子包裹的温暖和安静入睡的感受 。

开放格书柜,可以收纳孩子的玩具、书籍、画册、摆件,让宝宝随时能看见,随手能拿到 , 无形中可以培养他的阅读和动手能力 。

门后还有一个可爱的彩虹小挂钩,可以挂孩子的衣服和小包包,收纳的同时也是墙面的点缀 。总之 , 儿童房真的太可爱太童话了,别说孩子啦 , 我一个成年人都超羡慕!
整体来说,屋主虽是自学自装,可效果上却给人大大的惊喜 , 可以说是远超过很多专业的设计师 。室内大面积白墙搭配不同的原木,自然、温润、和舒适感非常强,加之屋主不错的软装技巧和布局 , 以及出彩的厨房设计,都给新家加分了不少 。
我想本篇也可以给喜爱原木风的宝子们一些参考的思路和自装的信心吧!
<图片来源/好好住@Lisalu丹尼尔
撰文、编辑/小喜>
猜你喜欢
- 南明和南宋都是南迁政权,为何南明政权只是昙花一现?
- 朱棣为什么要花大力气得到朱权的力量?朱权有什么特殊之处?
- 花盆用什么材质好 花盆用什么材质的好
- QQ火花巨轮 qq大火花怎么变成巨轮
- 9月24日雨花区同升街道佳新社区卫生服务中心hpv疫苗预约入口
- 南通市区赏花地图是怎么样的?
- 《玉树后庭花》为什么被称为亡国之音?曲子背后有什么故事?
- 《泊秦淮》背后是什么样的故事?后庭花指的是什么
- 桂花树太高怎么办
- 恩平花海欢乐世界水乐园夜场门票多少钱?
